Skip to main content
Accueil » Acheter » Acheter un appartement à Verbier » Élégant duplex de 4 pièces avec vue panoramique à vendre

Élégant duplex de 4 pièces avec vue panoramique à vendre

2 SALLES DE BAIN
3 CHAMBRES
108
2'450'000 CHF

Description

Situé dans l’un des quartiers résidentiels les plus prisés de Verbier, cet appartement duplex allie charme alpin, ensoleillement exceptionnel et vue dégagée sur les montagnes. Sa proximité avec la piste des Esserts et le parcours de golf de Verbier en fait un lieu idéal aussi bien pour la saison d’hiver que pour l’été.

Le bien est disponible en résidence secondaire et accessible à la clientèle étrangère.


Aperçu du bien


  • Adresse : Chemin de la Pleyeuse,  1936 Verbier
  • Orientation : plein sud, situé au 2ᵉ étage et dans les combles
  • À environ 400 m de la piste de ski et du golf
  • Quartier calme et bien entretenu, avec arrêt de bus à proximité


Caractéristiques principales


  • Construction d’origine vers 1980
  • Environnement paisible et vue entièrement dégagée
  • Excellente luminosité tout au long de la journée
  • Chauffage électrique
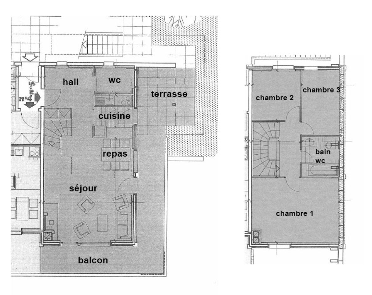
  • Surface de vente totale : 108 m². (97,5 m² habitables + 10,5 m² extérieurs, incluant les quotes-parts de balcon et terrasse)


Disposition – Niveau principal


  • Hall d’entrée accueillant avec rangements
  • Pièce de vie lumineuse avec coin repas, cheminée et accès au balcon
  • Cuisine indépendante avec accès à la terrasse et au balcon sud
  • WC visiteurs


Disposition – Niveau supérieur (Combles)


  • Une chambre double
  • Une chambre triple (avec mezzanine)
  • Une chambre simple
  • Salle de bain avec WC


Annexes


  • Garage box privé
  • Place de parc extérieure
  • Buanderie commune dans la résidence


Ce que nous aimons


  • Exposition plein sud et vue panoramique imprenable
  • Cheminée pour des soirées alpines chaleureuses
  • Accès direct aux pistes et au golf
  • Quartier paisible en partie haute de la station
  • Alliance parfaite entre authenticité et confort
Intéressé par ce bien ?