Skip to main content
Accueil » Acheter » Acheter un chalet à Verbier » Chalet Authentique – à vendre à Verbier

Chalet Authentique – à vendre à Verbier

4 SALLES DE BAIN
7 CHAMBRES
270
PRIX À LA DEMANDE

Description

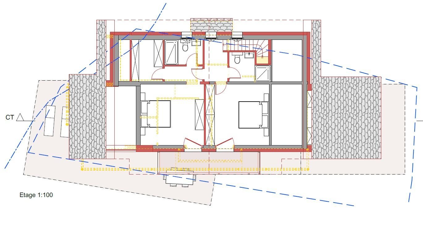
Découvrez cet authentique chalet dans la région prisée de Brunet situé dans un cadre idyllique et offrant une situation idéale pour les amateurs de ski à proximité du départ de la piste le Rouge. Profitez d’un ensoleillement optimal tout au long de la journée, dans un environnement calme et serein, tout en étant à proximité des restaurants et des commerces.


Caractéristiques du Chalet :
  • 8-pièces
  • 7 chambres spacieuses
  • 4 salles de bains 
  • Séparé en 2 appartements avec entrées et cuisines indépendantes
Grand potentiel d’agrandissement: Un avant-projet est déjà disponible, montrant le potentiel incroyable de cette propriété avec encore beaucoup de coefficient disponible. Vous pouvez augmenter la surface utilisable (SUP) d’au moins 30%, tout en conservant le droit de résidence secondaire, ou encore plus pour une résidence principale.
Stationnement : Comprend 4 places de parc intérieures et 1 place extérieure sur la parcelle voisine, avec un accès direct par ascenseur.
Disponible pour notre clientèle étrangère.
Intéressé par ce bien ?